Sale
AL-VR107-4GR90
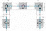
Aluminium pole, VK-straight, corner R
36.174 Ft
Unit price
/
Unavailable
without VAT
with VAT
Stock availability
SK Krompachy
3
HU Nagytarcsa
0
Kontakt
Kontakt
Add some general information about your delivery and shipping policies.
lubomir.petruska@umakov.sk
+421915093533 +393483490444
Description
Glass height = [1070 – (100 + 2 + 3)] mm= 965mm
Parameters
Material
Defines the material from which the product is made.
Aluminium
Surface finish
Surface finish of product
Color
Glass t
Determines the thickness of the glass in mm the product is suitable for
11,52
Filling
Determines use based on the size and shape of the infill
Glass
Effect
Vyberte si farebný odtieň.
Black RAL 9005
Shape
Tvar prierezu materiálu
Ellipse
Post
Determines use based on the size and shape of the post
81x47
G/h kN
1,5
h
107






