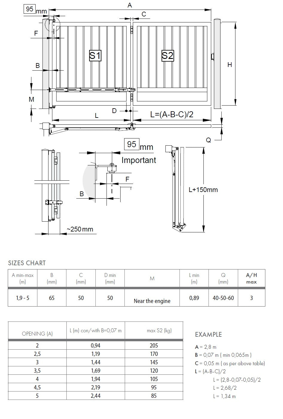
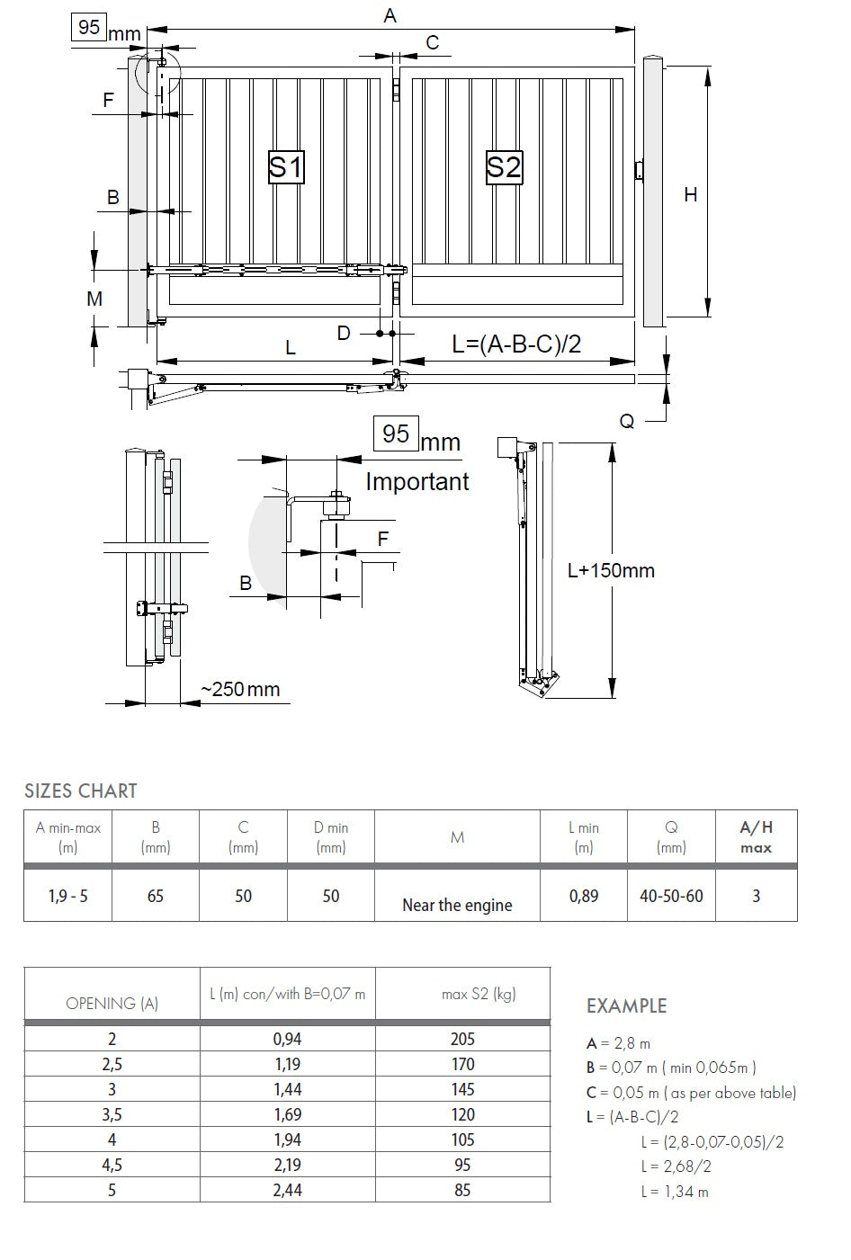
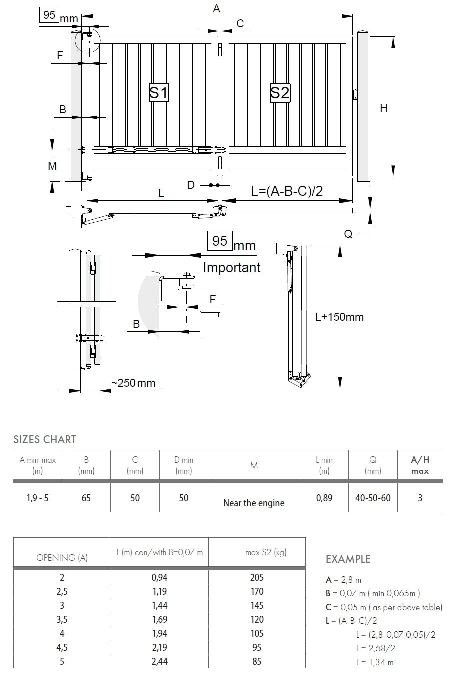
Description
Complete set of mechanism for swing gates. This system, when properly installed, ensures the folding of the gate wing, reducing the length of the wing when opened. Suitable for swing gates with limited space when opening or with significant terrain elevation. The gate frame construction needs to be adjusted according to the instructions. The set includes parts for one wing. For a double-wing gate, it is necessary to purchase 2 units. The mechanism is suitable for a total wing length from 1.9m to 5m.



